immo Kaart

Crutzenstraat 6, 3500 Hasselt

Handelspand Te Huur in Hasselt
300 m² wonen
€3.250

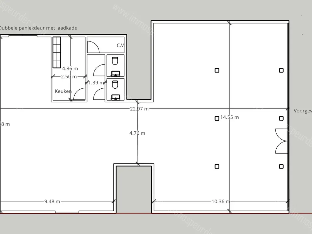
Crutzenstraat 6 - 3500 Hasselt - Winkel 300m², met een étalage van 15m, op commerciële topligging, zeer zichtbaar en strategisch gelegen aan het kruispunt Kuringersteenweg met Grote Ring en de Carrefour, op slechts enkele minuten van oprit 27 van de E313. Aan de achterzijde voorzien van een laadkade. Auto 5, Gordijnen Castermans, Carrefour, Lunch Garden, Pizza Hut en Brico zijn er uw buren. Ruime parkeergelegenheid voor het pand en in de omgeving. Het pand werd volledig vernieuwd, geïsoleerd, voorzien van nieuwe ramen, keuken, sanitair, elektriciteit, verwarming en nieuwe vloer. Verwarming op aardgas. EPC label B Onroerende voorheffing ten laste van de huurder: € 398,00 per maand. Gemeenschappelijke lasten: € 50,00 per maand. Onmiddellijk beschikbaar. Bezichtigen na afspraak via ons kantoor

Kenmerken
Financieel
Vraagprijs
€ 3.250
Algemeen
Type
Handelspand
Bewoonbare oppervlakte
300 m2
Referentie
ADOYXJT6P-LT
Makelaar Code
6254797
Prijs Geschiedenis
29 Sep 2024
€3.250 / Jansen Real Estate

Meld u hier GRATIS aan om de extra informatie en prijshistoriek te bekijken van de

Crutzenstraat 6, 3500 Hasselt.


Door het invullen van dit formulier gaat u akkoord met de gebruiksvoorwaarden en privacy van Immospeurder.com