Home Te Koop Appartement 1090 Jette
Rue Pierre Timmermans 12



immo Kaart

Rue Pierre Timmermans 12, 1090 Jette

Appartement Te Koop in Jette
70 m² wonen
2 slaapkamers
€209.000

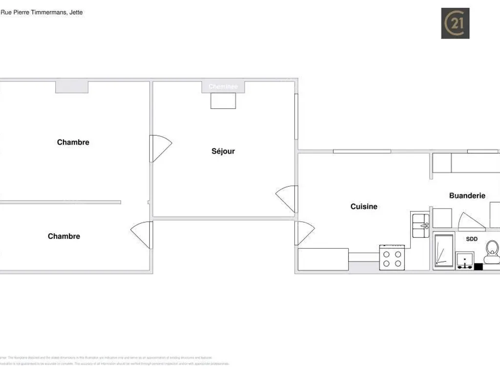
Rue Pierre Timmermans 12 - 1090 Jette - JETTE (réf.: 3838) Gelegen P. Timmermansstraat, un de hart van Jette (Spiegel), appartement op de 3de verdieping in een klein gebouw ZONDER LASTEN. Deze bestaat uit een woonkamer, een keuken, een wasruimte, 2 slaapkamers en een douchekamer. EPC: F. Individuele gasketet Vaillant. Voor meer informatie, contacteer ons op 02/424.21.21.

Kenmerken
Financieel
Vraagprijs
€ 209.000
Algemeen
Type
Appartement
Bewoonbare oppervlakte
70 m2
Referentie
9MU0RJGTZ86N
Makelaar Code
352-9317
Prijs Geschiedenis
23 Sep 2024
€209.000 / C21 Miroir

Meld u hier GRATIS aan om de extra informatie en prijshistoriek te bekijken van de

Rue Pierre Timmermans 12, 1090 Jette.


Door het invullen van dit formulier gaat u akkoord met de gebruiksvoorwaarden en privacy van Immospeurder.com