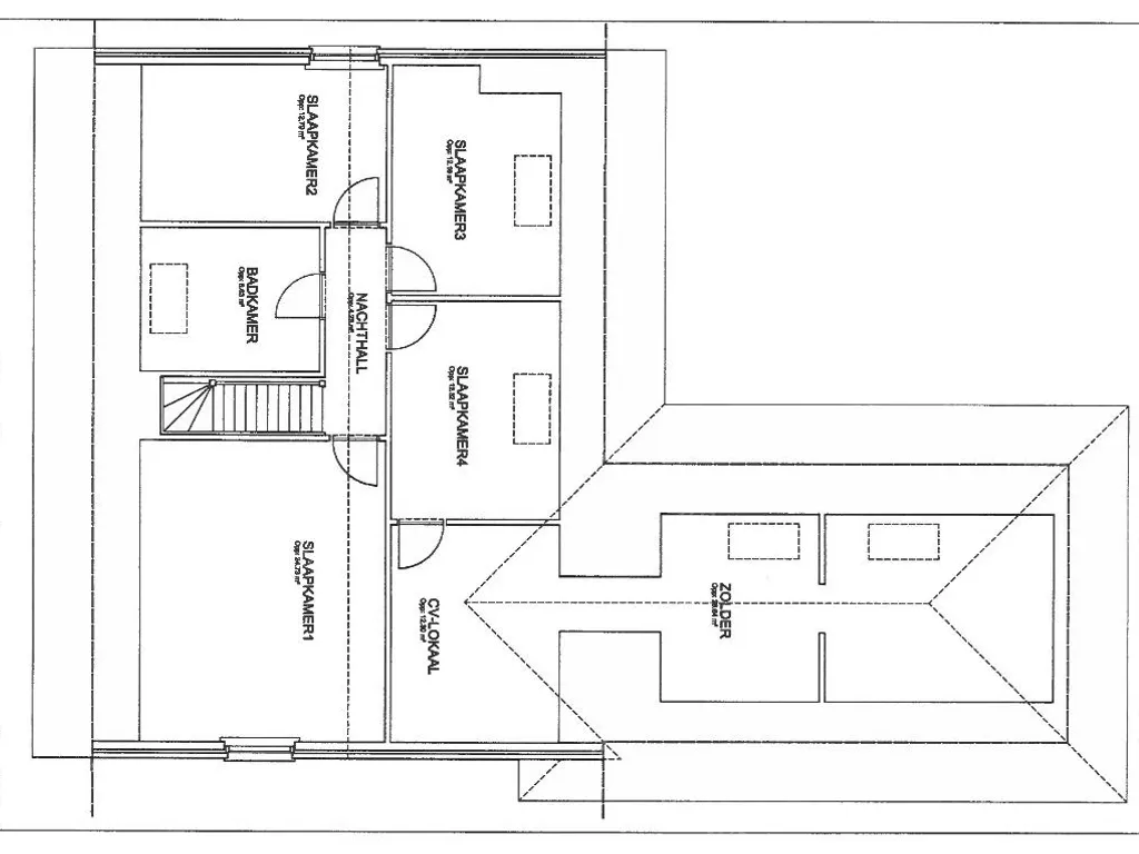
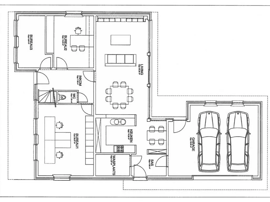
Autobaan 23 - 8210 Loppem - Deze lichtrijke villa heeft een uiterst praktisch inrichting indien u op zoek bent naar een woning met burelen/praktijkruimtes of handelsruimte!
Kenmerken
Het lijkt erop dat dit zoekertje niet meer beschikbaar is.
Vraagprijs
€ 599.000
Type
Villa
Grond
720 m²
Bouwjaar
1987
EPC
243 kWh/m²
C
Aanvullende details
Referentie
XNWAW6DF7DBL
Makelaar Code
TK/LO/AV/0194
Ruimtelijke Ordening
Stedenbouwkundige vergunning
Ja
Dagvaarding uitgebracht
Geen rechterlijke herstelmaatregel of bestuurlijke maatregel opgelegd
Rechterlijke beslissing
Niet meegedeeld
Voorkooprecht
Niet meegedeeld
Verkavelingsvergunning
Ja
Stedenbouwkundige bestemming
Woongebied
Overstromingsgevoelig gebied
Niet overstromingsgevoelig
Deze gegevens worden door de oorspronkelijke makelaar of eigenaar aangeleverd. Bij vermelding "Niet meegedeeld" raden we aan rechtstreeks contact op te nemen met de adverteerder voor de wettelijk verplichte informatie.
Prijs Geschiedenis
29 Jun 2022
01 Jun 2022
Nog meer informatie en prijsgeschiedenis zien over dit adres?
Meld u hier GRATIS aan om al deze informatie te bekijken.
Interesse wanneer dit pand opnieuw te koop staat? Laat uw gegevens hier achter en blijf op de hoogte.