Ga naar inhoud
Terug naar resultaten



immo Kaart

Dokter Adriaensstraat 57, 8210 Zedelgem

Villa in Zedelgem
436 m² perceel
3 slaapkamers
€340.000

Dokter Adriaensstraat 57 - 8210 Zedelgem - Woning Te koop
Deze nieuwe verkaveling is gelegen in een rustige omgeving, nabij het dorpscentrum.
Er zijn nog 2 alleenstaande villa's beschikbaar op een mooi perceel van 436m² (lot 3) of 465m² (lot 4).
De woningen worden opgebouwd met 1 bouwlaag en hellend dak.
De koper heeft nog ruime inspraak in de materiaalkeuze, stijl & indeling van deze woningen.

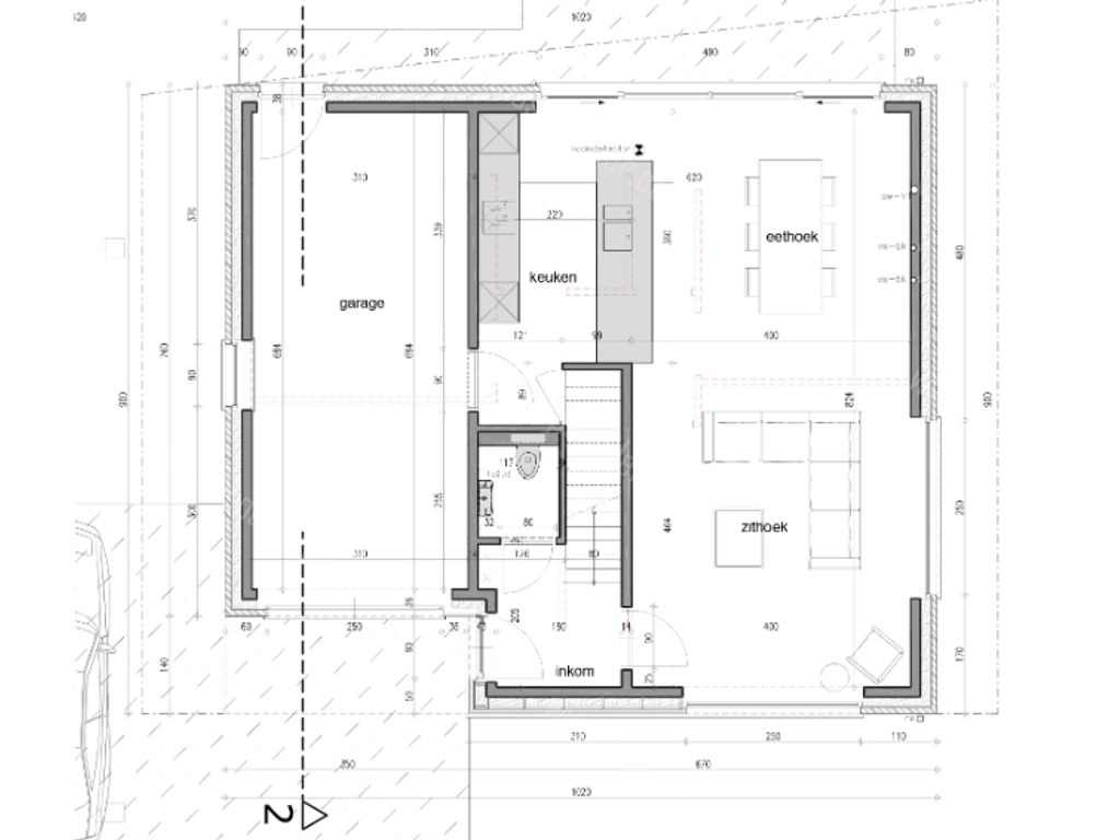
Elke woning wordt voorzien van een inkomhal, afzonderlijk toilet, woonkamer met eet- en zithoek, open ingerichte keuken (naar smaak in te richten), praktische wasplaats/berging, inpandige GARAGE.
Op de verdieping is er de nachthall, afzonderlijk toilet, ingerichte badkamer (naar smaak in te richten) en 3 slaapkamers.
Via een zolderluik is er toegang naar de bergzolder.
De tuin is zuid-oost gericht.

Vraag gerust naar de voorbeeldplannen en het lastenboek.

E-peil 30.
Verkoop onder BTW.

Kenmerken

Het lijkt erop dat dit zoekertje niet meer beschikbaar is.
Vraagprijs
€ 340.000
Type
Villa
Grond
436 m²
Bouwjaar
2021
Aanvullende details
Referentie
FY5HVJZZT-33
Makelaar Code
17640
EPC Certificaat
V/2017/20
Ruimtelijke Ordening
Stedenbouwkundige vergunning
Ja
Dagvaarding uitgebracht
nee
Rechterlijke beslissing
Niet meegedeeld
Voorkooprecht
nee
Verkavelingsvergunning
ja
Stedenbouwkundige bestemming
Woongebied
Overstromingsgevoelig gebied
Niet overstromingsgevoelig

Deze gegevens worden door de oorspronkelijke makelaar of eigenaar aangeleverd. Bij vermelding "Niet meegedeeld" raden we aan rechtstreeks contact op te nemen met de adverteerder voor de wettelijk verplichte informatie.

Prijs Geschiedenis
26 Mar 2022
€340.000 / Meuleman Vastgoed

Nog meer informatie en prijsgeschiedenis zien over dit adres?
Meld u hier GRATIS aan om al deze informatie te bekijken.

Interesse wanneer dit pand opnieuw te koop staat? Laat uw gegevens hier achter en blijf op de hoogte.
Door het invullen van dit formulier gaat u akkoord met de gebruiksvoorwaarden en privacy van Immospeurder.com