immo Kaart

Lommelsesteenweg 30, 3970 Leopoldsburg

Handelspand Te Huur in Leopoldsburg
Prijs op aanvraag

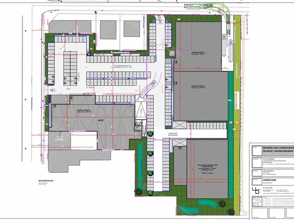
Lommelsesteenweg 30 - 3970 Leopoldsburg - Nieuwe ontwikkeling van 2.900m² retail + 2.000m² leisure vlakbij het centrum van Leopoldsburg, aan de nationale weg richting Lommel.

De winkelruimte is splitsbaar is meerdere units.

De site beschikt over 58 privatieve parkeerplaatsen + 55 parkeerplaatsen die gedeeld zullen worden met Aldi.
Verdieping Unit Type Oppervlakte Beschikbaarheid
Gelijkvloers Winkel 2900 m²
Gelijkvloers Polyvalent 2000 m²

Kenmerken
Financieel
Vraagprijs
Prijs op aanvraag
Algemeen
Type
Handelspand
Referentie
6EHV6ONYNMJ2
Makelaar Code
87797

Meld u hier GRATIS aan om de extra informatie en prijshistoriek te bekijken van de

Lommelsesteenweg 30, 3970 Leopoldsburg.


Door het invullen van dit formulier gaat u akkoord met de gebruiksvoorwaarden en privacy van Immospeurder.com