Home Te Huur Kantoor 2321 Meer
Wenenstraat 7



immo Kaart

Wenenstraat 7, 2321 Meer

Kantoor Te Huur in Meer
65 m² wonen
4062 m² perceel
€406

Wenenstraat 7 - 2321 Meer - Wenenstraat 7 , 2321 MEER
Te huur in Meer:
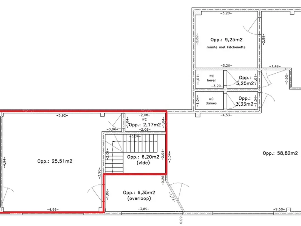
Kantoorruimte van 65 m2 dat onmiddelijk beschikbaar is.
Het ruimte bestaat uit een inkom, trappenhal, 2 kantoren en een toilet op het eerste verdiep.


raming van de vaste kosten:
- onroerende voorheffing: 2,94 euro/m²
- verzekering 0,58 euro/m²
- onderhoud: 2,16 euro/m²

Kenmerken
Financieel
Vraagprijs
€ 406
Algemeen
Type
Kantoor
Grond oppervlakte
4062 m2
Bewoonbare oppervlakte
65 m2
Referentie
5800320210702193438
Makelaar Code
3486679
Ruimtelijke Ordening
Stedenbouwk. vergunning
nee
Dagvaarding uitgebracht
nee
Rechterlijke beslissing
n/a
Voorkooprecht
Geen voorkooprecht ruimtelijke ordening aanwezig
Verkavelingsvergunning
Geen verkavelingsvergunning
Bestemming
n/a
Overstromingsgebied
Niet gelegen in overstromingsgevoelig gebied
Prijs Geschiedenis
13 Feb 2023
€406 / AT Home en Partners
30 Jan 2023
-- / AT Home en Partners
12 Feb 2022
€407 / AT Home en Partners
02 Jul 2021
€406 / AT Home en Partners

Meld u hier GRATIS aan om de extra informatie en prijshistoriek te bekijken van de

Wenenstraat 7, 2321 Meer.


Door het invullen van dit formulier gaat u akkoord met de gebruiksvoorwaarden en privacy van Immospeurder.com