immo Kaart

Project 't Dorp C31, 2387 Baarle-Hertog

Appartement Te Koop in Baarle-Hertog
3 slaapkamers
€407.306

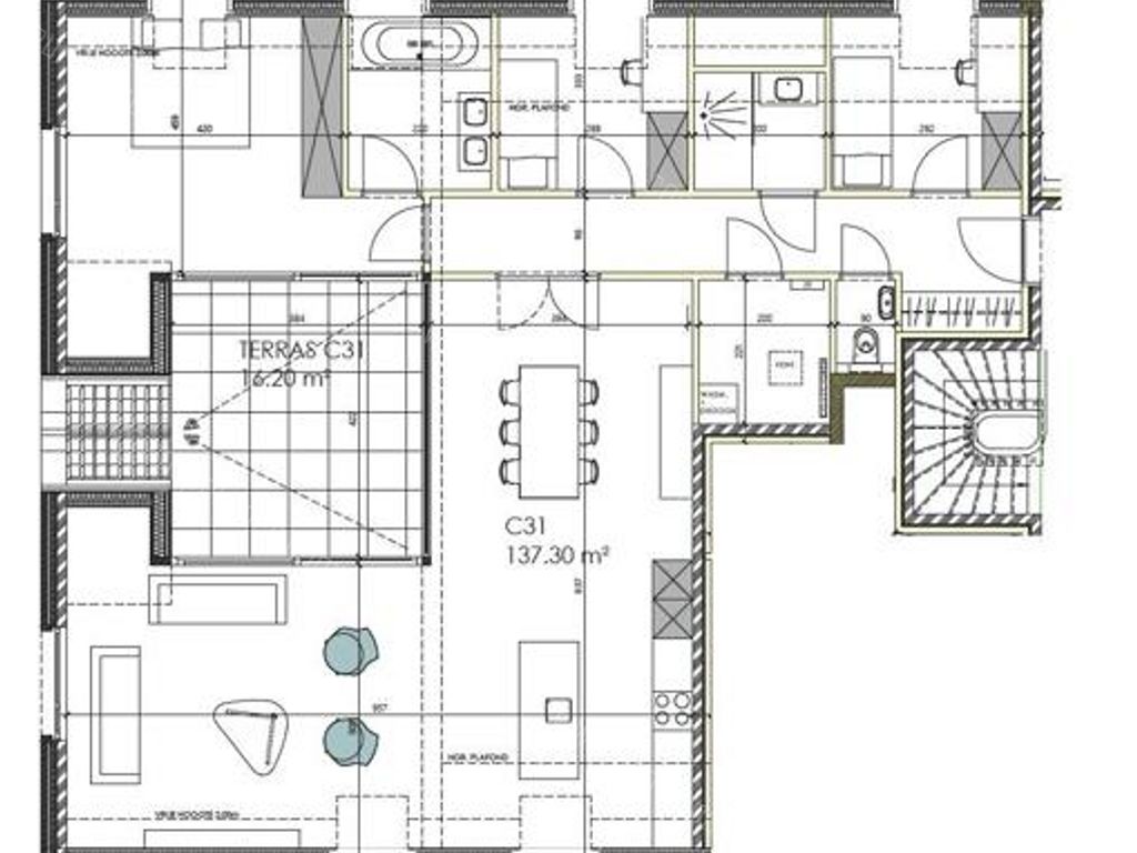
Project 't Dorp C31 - 2387 Baarle-Hertog - Prachtig nieuwbouwappartement van ca. 137 m² op de derde verdieping van het project Het Dorp gelegen in het centrum van Baarle-Hertog. Het appartement bestaat uit een entree, apart toilet, woonkamer met open keuken, inpandige berging, drie slaapkamers en twee badkamers. Het appartement beschikt over een terras van ca. 16 m².
DE VERMELDE PRIJS OP BASIS VAN HET 6% BTW-TARIEF, IS ENKEL VAN TOEPASSING WANNEER VOLDAAN IS AAN DE VOORWAARDEN. (voor meer info m.b.t. deze voorwaarden kunt u contact opnemen met ons kantoor)
Indeling
Middels de trap of lift is vanuit de gemeenschappelijke entree, de entree van het appartement te bereiken. De entree biedt toegang tot zowat alle ruimtes in het appartement.
De woonkamer met open keuken heeft een oppervlakte van ca. 65 m² en biedt toegang tot het terras.
De keuken is voorzien van een keukenblok in wandopstelling met een spoeleiland uitgerust met de volgende inbouwapparatuur: kookplaat, afzuigkap, koelkast, vaatwasser, combi-oven en een spoelbak.
De inpandige berging beschikt over alle technische aansluitingen zoals de binnen-unit van de warmtepomp, de aansluitingen ten behoeve van de wasapparatuur, de ventilatie-unit, de groepenkast en de collector van de zonnepanelen.
De slaapkamers heeft een oppervlakte van ca. 25 m², 9 m² en 9 m².
De eerste badkamer is toegankelijk vanuit de grote slaapkamers en is voorzien van een ligbad en een badkamermeubel met dubbele vaste wastafel. De tweede badkamer is voorzien van een douche met thermostaatkraan en een badkamermeubel met vaste wastafel.
Het appartement beschikt over een op het westen gesitueerd terras van ca. 16 m².
Het volledige project wordt voorzien van een ondergrondse parking met parkeerplaatsen en bergingen. De koper is verplicht een parkeerplaats aan te kopen bij de aankoop van een appartement of woning uit dit project.
Algemeen:
– Bouwperiode: 2022-2024
– Bruto-vloeroppervlakte: ca. 137 m²
– Verwarming door middel van warmtepomp via vloerverwarming
– Volledig voorzien van aluminium kozijnen met dubbele beglazing
– Op het westen gesitueerd terras van ca. 16 m²
– Ideale locatie in het midden van het centrum van Baarle-Hertog

Kenmerken
Financieel
Vraagprijs
€ 407.306
Algemeen
Type
Appartement
Referentie
6AY4JP3PBGQJ
Makelaar Code
RH-3865301-property
Prijs Geschiedenis
06 May 2022
€407.306 / VR Makelaars
19 Mar 2022
€383.456 / VR Makelaars
05 Mar 2022
€381.406 / VR Makelaars

Meld u hier GRATIS aan om de extra informatie en prijshistoriek te bekijken van de

Project 't Dorp C31, 2387 Baarle-Hertog.


Door het invullen van dit formulier gaat u akkoord met de gebruiksvoorwaarden en privacy van Immospeurder.com