Ga naar inhoud
Terug naar resultaten



immo Kaart

Weg Naar As 33, 3600 Genk

Appartement Te Koop in Genk
€550.000

Weg Naar As 33 - 3600 Genk - Op een uitstekende ligging in het centrum van Genk, langs de Weg naar As, vindt u Residentie Belgiek: een kleinschalig en verfijnd nieuwbouwproject met slechts 9 exclusieve BEN-appartementen. Architecturale kwaliteit, een tijdloos ontwerp en hedendaags wooncomfort smelten hier samen tot een bijzonder aangename woonbeleving in het centrum van Genk.
Voorziene oplevering: najaar 2026.

Samengevat
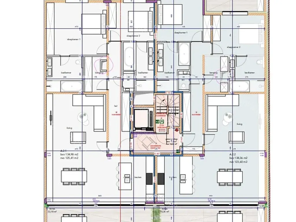
???? 135 m² bewoonbare oppervlakte op de tweede verdieping
???? Zuidgericht hoofdterras van ca. 22 m², bereikbaar vanuit de lichtrijke leefruimte
????? Twee volwaardige slaapkamers, beide met aansluitende badkamer & toegang tot een extra terras
???? Badkamer + apart gastentoilet
???? Handige berging aansluitend aan de keuken
????? Hoogwaardige afwerking, met inspraak in materialen
???? E-peil < 30

Dit ruime appartement van 135 m² is gelegen op de eerste verdieping en biedt een bijzonder aangename indeling. De lichtrijke leefruimte geeft rechtstreeks uit op een zuidgericht terras van ongeveer 22 m², waar het heerlijk vertoeven is. Daarnaast beschikt het appartement over twee volwaardige slaapkamers, die elk toegang hebben tot een extra terras. Verder zijn er twee badkamers, een apart gastentoilet en een praktische berging die aansluit op de keuken. De afwerking is van hoog niveau en kan volledig afgestemd worden op uw persoonlijke smaak, met vrije materiaalkeuze en professionele begeleiding door een interieurarchitecte, inbegrepen in de prijs.

Dankzij het BEN-concept met een E...
Renovatieplicht: onbekend

Kenmerken

Financieel
Vraagprijs
€ 550.000
Algemeen
Type
Appartement
Referentie
C48JK3SI1SNI
Prijs Geschiedenis
16 Mar 2026
€550.000 / Particulier

Nog meer informatie en prijsgeschiedenis zien over dit adres?
Meld u hier GRATIS aan om al deze informatie te bekijken.

Door het invullen van dit formulier gaat u akkoord met de gebruiksvoorwaarden en privacy van Immospeurder.com
WhatsApp Contacteer