immo Kaart

Middenstraat 19, 3650 Dilsen-Stokkem

Huis Te Koop in Dilsen-Stokkem
180 m² wonen
166 m² perceel
€175.000

Middenstraat 19 - 3650 Dilsen-Stokkem - In hartje Stokkem ligt deze nog af te werken woning.
Deze verrassend ruimte woning is heel stevig gebouwd. De gevels zijn steenstrips.
De elektriciteit is aangesloten.
De woonkamer met mezzanine heeft kamerhoge metalen raam naar de tuin.
Een (voorlopige) houten trap leidt naar de 1e verdieping waar nu ruimte is voorzien voor slaapkamer, badkamer.
EPC is nog niet voorhanden vermits huis nog niet afgewerkt is. Er zijn zonnepanelen.
De woning is goed gelegen in volle centrum. Kortbij de Wissen en Negenoord en de Boyen, natuurgebieden,.....
EPB is in opmaak. Startverklaring is voorhanden.
VERKOOP onder BTW stelsel = 21 % BTW.

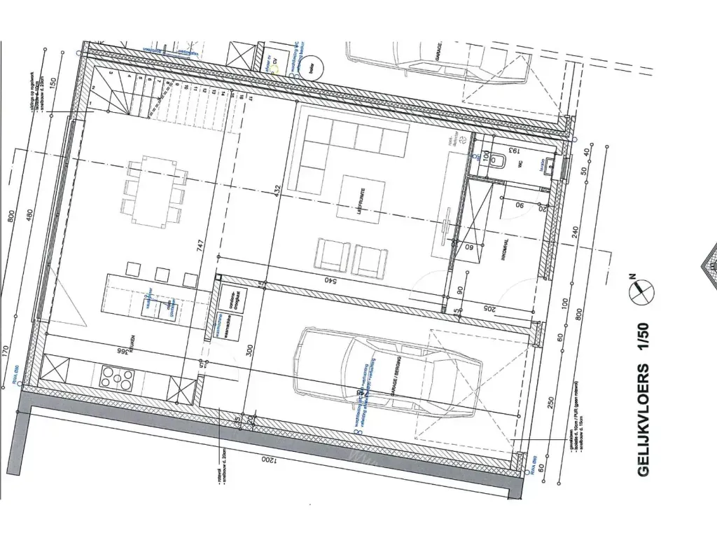
GELIJKVLOERS (plafondhoogte: 2,80 m / 5,60 m)
- Inkom: (2,80 m x 3,22 m = 9,02 m²)
- Toilet
- Woonkamer: (7,47 m / 4,32 m x 9,50 m = 50,67 m²)
- Garage: (7,48 m x 3,00 m = 22,44 m²)

EERSTE VERDIEPING (plafondhoogte: 2,50 m)
- Vide
- Mezzanine: (7,47 m x 3,58 m = 26,74 m²) – ideaal voor bijvoorbeeld bureel / hobby /studieplaats
- Slaapkamer 1: (4,32 m x 3,60 m = 15,55 ... m²)
- Badkamer 1: (3,00 m x 3,71 m = 11,13 m²)

TWEEDE VERDIEPING (plafondhoogte: 2,60 m)
- Slaapkamer 2: (4,32 m / 1,80 m x 3,60 m)
- Berging: (2,00 m x 2,42 m = 4,84 m²)
- Slaapkamer 3: (3,00 m x 5,29 m = 15,87 m²)
- Slaapkamer 4: (4,32 m x 3,18 m = 15,55 m²)
- Badkamer 2: (3,00 m x 3,80 m = 11,40 m²)
- Toilet

TUIN - TERRAS :
- Grootte (7,70 m x 7,00 m = 55,00 m)
- Ingesloten gezellige tuin
- Orientatie noord-west

GARAGE
- Inpandige garage gelijkvloers – zie hierboven

Bijkomende informatieplicht waterinfo:
- Het goed is niet gelegen in een signaalgebied
- Het goed is niet aangeduid als een watergevoelig openruimtegebied

Wij kunnen geen garantie geven over de juistheid van de gegevens en afmetingen.
Lees meer Verberg

Kenmerken
Financieel
Vraagprijs
€ 175.000
Algemeen
Type
Huis
Grond oppervlakte
166 m2
Bewoonbare oppervlakte
180 m2
Referentie
SSX-PYIOPK13
Makelaar Code
8335
Ruimtelijke Ordening
Stedenbouwk. vergunning
n/a
Dagvaarding uitgebracht
Geen rechterlijke herstelmaatregel of bestuurlijke maatregel opgelegd
Rechterlijke beslissing
n/a
Voorkooprecht
Neen
Verkavelingsvergunning
Ja
Bestemming
Woongebied met culturele, historische en/of esthetische waarde
Overstromingsgebied
n/a
Prijs Geschiedenis
20 Apr 2024
€175.000 / Lumaro

Meld u hier GRATIS aan om de extra informatie en prijshistoriek te bekijken van de

Middenstraat 19, 3650 Dilsen-Stokkem.


Door het invullen van dit formulier gaat u akkoord met de gebruiksvoorwaarden en privacy van Immospeurder.com