Home Te Koop Huis 2950 Kapellen
Kapelsestraat 65



immo Kaart

Kapelsestraat 65, 2950 Kapellen

Huis Te Koop in Kapellen
180 m² wonen
147 m² perceel
5 slaapkamers
€249.000

Kapelsestraat 65 - 2950 Kapellen - Zuidwest georiënteerd en aan de flank van het Kasteel van Kapellen op zichtlocatie gelegen ruim renovatiepand met meerdere mogelijkheden wonen/werken! Het pand is volledig aan te pakken maar is uniek door zijn mooie oppervlaktes, mogelijkheden (tot 5 slaapkamers!) en ligging (volledig omgeven door blijvend parkgebied!). Hoge plafonds, mooie elementen, goede indeling en goed her in te richten (impressies en afmetingen gebaseerd op echte vloerplan).

Dit eigendom omvat in totaliteit 3 verdiepingen, waaronder:
1. Een droge kelder
2. Een volledig te renoveren gelijkvloerse verdieping
3. Een volledig te renoveren eerste verdieping
4. Een bergzolder

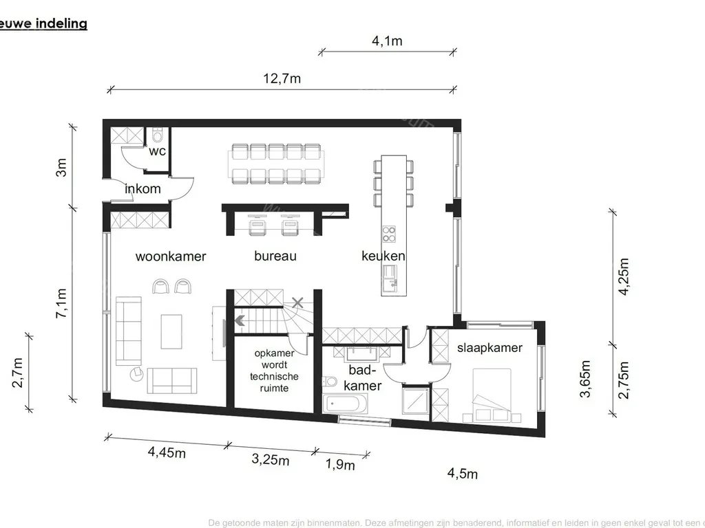
Indeling:
De indeling van de gelijkvloerse verdieping: 
- Een ruime en lichte woonkamer
- Een eetplaats
- Een opkamer
- Een keuken
- Badkamer met plaats voor bad en wastafel
- Toilet
- Berging
- Garage

De indeling van de eerste verdieping:
5 slaapkamers (na renovatie!) de oppervlakten van de slaapkamers bedragen:

- Slaapkamer 1: ca. 23 m²
- Slaapkamer 2: ca. 17 m²
- Slaapkamer 3: ca. 12 m²
- Slaapkamer 4: ca 9 m²
- Slaapkamer 5: ca. 8 m²

Algemeen:
Winkels, scholen en openbaar vervoer bevinden zich op wandelafstand met ook diverse natuurgebieden nabij!
Verder geniet u van een vlotte bereikbaarheid en een uitstekende verbinding naar Antwerpen, Nederland en de haven!

Kenmerken
Financieel
Vraagprijs
€ 249.000
Algemeen
Type
Huis
Bouwjaar
1950
Grond oppervlakte
147 m2
Bewoonbare oppervlakte
180 m2
Referentie
UNNS5GB9KY4A
Makelaar Code
67347 KF
EPC Waarde
1076 kWh/m2
EPC Label
F
EPC Certificaat
2701101
Ruimtelijke Ordening
Stedenbouwk. vergunning
Vergunning uitgereikt
Dagvaarding uitgebracht
Geen rechterlijke herstelmaatregel of bestuurlijke maatregel opgelegd
Rechterlijke beslissing
n/a
Voorkooprecht
Geen voorkooprecht ruimtelijke ordening aanwezig
Verkavelingsvergunning
Geen verkavelingsvergunning
Bestemming
parkgebied
Overstromingsgebied
n/a
Prijs Geschiedenis
01 May 2024
€249.000 / De Boer & Partners

Meld u hier GRATIS aan om de extra informatie en prijshistoriek te bekijken van de

Kapelsestraat 65, 2950 Kapellen.


Door het invullen van dit formulier gaat u akkoord met de gebruiksvoorwaarden en privacy van Immospeurder.com