Home Te Koop Huis 4300 Waremme
Avenue Joseph Lemaire LOT56



immo Kaart

Avenue Joseph Lemaire LOT56 , 4300 Waremme

Huis Te Koop in Waremme
192 m² wonen
291 m² perceel
3 slaapkamers
€343.062

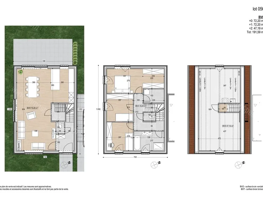
Avenue Joseph Lemaire LOT56 - 4300 Waremme - IMMOCUBE vous propose ce projet neuf « JOSEPH LEMAIRE » de 30 maisons unifamiliales proche du centre Waremme et de toutes commodités !! Ce nouveau projet résidentiel est synonyme de vie agréable dans un environnement vert, tout en étant proche des transports en communs et de l’E40. Maison 4 façades (LOT 56) composée de 3 chambres (possibilité 5!!). D'une superficie habitable de 144,40 m² + 47,19 m² (grenier) avec un jardin de 218,80 m².Elle est équipée d’un chauffage central au gaz, panneaux photovoltaïques, châssis aluminium super isolant, une toiture en tuile plate avec une isolation de 22 cm de laine minérale, un système de ventilation, une pompe à eau de pluie (reliée aux toilettes et robinet extérieur) et raccordé à l’égout. Tout est prévu pour que ça soit aux normes énergétiques actuelles. Livraison prévue pour l'été 2025. Prix : 343.062,00€ HTVA/DROITS D'ENREGSITREMENT. Vous souhaitez de plus amples informations sur le projet ? N’attendez pas, ce projet est fort demandé !! Vous pouvez nous joindre au 0477/13.50.82 ou nous envoyer un mail via info@immocube.be

Kenmerken
Financieel
Vraagprijs
€ 343.062
Algemeen
Type
Huis
Grond oppervlakte
291 m2
Bewoonbare oppervlakte
192 m2
Referentie
5OSBX6TF4TML
Makelaar Code
2663
EPC Waarde
En demande kWh/m2
EPC Label
F
Prijs Geschiedenis
12 Nov 2023
€343.062 / ImmoCube

Meld u hier GRATIS aan om de extra informatie en prijshistoriek te bekijken van de

Avenue Joseph Lemaire LOT56 , 4300 Waremme.


Door het invullen van dit formulier gaat u akkoord met de gebruiksvoorwaarden en privacy van Immospeurder.com