Home Garage 8430 Middelkerke
Vlaanderenstraat 2



immo Kaart

Vlaanderenstraat 2, 8430 Middelkerke

Garage in Middelkerke
€70.000

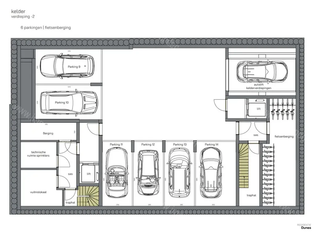
Vlaanderenstraat 2 - 8430 Middelkerke - Bij het ontwerpen van de appartementen wordt de nadruk gelegd op kwaliteit en comfort, met veel aandacht voor een praktische indeling en privacy. Dankzij voldoende glaspartijen genieten de bewoners van een overvloed aan natuurlijk licht, wat het wooncomfort aanzienlijk verhoogt. De architectuur is tijdloos en opvallen, met speelse terrassen en interessante contrasten. De gebruikte gevelmaterialen dragen bij aan een karaktervol en modern uiterlijk dat perfect integreert in de omgeving. Bovendien wordt er gebruik gemaakt van hoogwaardige materialen.

Kenmerken
Status: Het lijkt erop dat dit zoekertje niet meer beschikbaar is.

Financieel
Vraagprijs
€ 70.000
Algemeen
Type
Garage
Bouwjaar
2027
Referentie
PDZO-B3U4HJP
Makelaar Code
5145
Ruimtelijke Ordening
Stedenbouwk. vergunning
Nog niet aangevraagd
Dagvaarding uitgebracht
Nog niet aangevraagd
Rechterlijke beslissing
n/a
Voorkooprecht
n/a
Verkavelingsvergunning
Nog niet aangevraagd
Bestemming
n/a
Overstromingsgebied
n/a
Prijs Geschiedenis
16 Apr 2024
€70.000 / Sissau

Meld u hier GRATIS aan om de extra informatie en prijshistoriek te bekijken van de

Vlaanderenstraat 2, 8430 Middelkerke.


Interesse wanneer dit pand opnieuw te koop staat? Laat uw gegevens hier achter en blijf op de hoogte.
Door het invullen van dit formulier gaat u akkoord met de gebruiksvoorwaarden en privacy van Immospeurder.com